You are here:
Dubai
|
Real Estate
|
Hotels

Hotels

While hotels were once merely part of investment portfolios, the hotel industry has long since become one of the fastest-growing sectors in the world and is now attracting the attention of private and institutional investors. Hotel properties have already established themselves as a distinct asset class in the investment market and are among the most attractive investment opportunities for many investors.

In close collaboration with investors, we develop the optimal acquisition profile for the realization of long-term profitable hotel properties, tailored to the investment strategy, taking into account site selection, concept, and budget. A sustainable planning approach requires intensive communication between clients and project participants and anticipates the vision of future needs. The development and implementation of ambitious concepts and innovative solutions for investors, operators, and their needs are coordinated in close partnership with all project participants. To meet the competitive pressure and the high demands of international guests, targeted investments in visionary architectural designs, exceptional spatial concepts with state-of-the-art amenities, innovative leisure offerings, and cutting-edge technologies are crucial.

Together, we realize innovative and architecturally outstanding projects that can respond flexibly and responsively to requirements and needs. State-of-the-art materials and building technology create a timeless ambiance for future generations. Buildings with adaptable long-term use throughout their entire life cycle, including gold or platinum certifications from leading sustainability certifications.

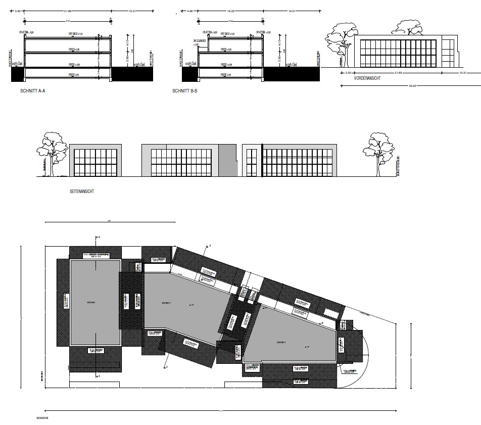
Reference object

Design and planning of a new hotel at Düsseldorf Airport, commissioned by an investor from Dubai.

Contact us

What are you planning?

Type of property?

We look forward to supporting you in the implementation of your real estate project. Whatever your plans, our team is ready to help!